
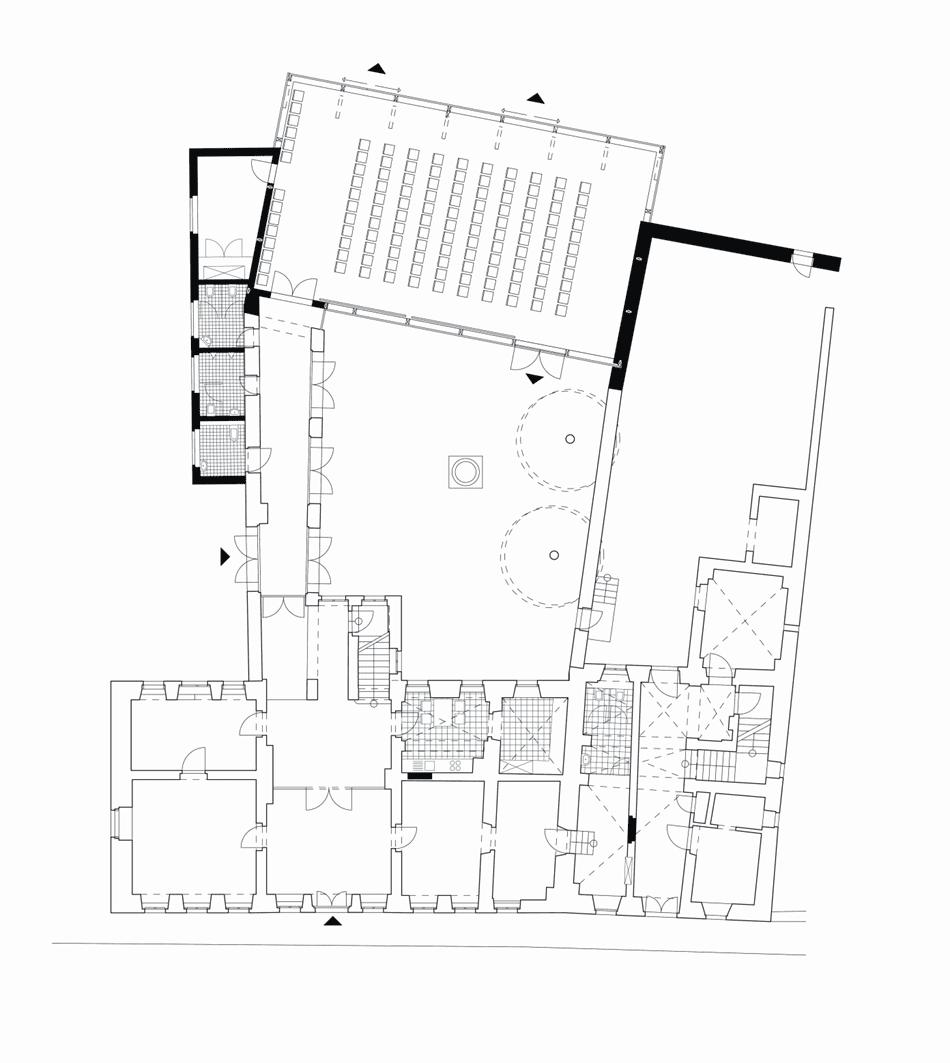
Im Hof des Pfarrhauses in Zittau wurde zwischen 2003 und 2004 unter der Leitung von Reiter Architekten BDA aus Dresden in enger Zusammenarbeit mit Rentzsch Architekten der Neubau eines Evangelischen Gemeindesaals realisiert. Dieser bietet Platz für 120 Personen und fügt sich harmonisch in die Umgebung ein.
Das beeindruckende Bauwerk zeichnet sich durch eine Holzhängekonstruktion auf rechteckigem Grundriss aus. Besonders hervorzuheben ist die Rauten-Hängekonstruktion aus Holz, die als Flächentragwerk dient und dem Saal eine einzigartige ästhetische Note verleiht. Um dieses eindrucksvolle Gestaltungselement zu schaffen, wurden Fichtenbretter vor Ort über eine Schalung gebogen und miteinander vernagelt.
Das Bauwerk verfügt über einen umbauten Raum von 3600 Kubikmetern und wurde in Holzrahmenbauweise errichtet.
Bauherrschaft: Evangelisches Gemeindezentrum Zittau
Architektur: Reiter Architekten GmbH, Dresden
Statik: Ingenieurbüro Dittrich, München
Haustechnik: Hawemann Solar, Radebeul
Nutzungsfläche (NUF): 220m²
Fertigstellung: 2004
Fotos: Olaf Reiter, Dresden